作者:kpsboy
老婆大人因工作之故,曾經在新竹金山街租賃。返回臺北後,她的結論是:我不要再租房子了,有自己的房子才有歸屬感。

成家以後,由於當時房價飆漲,正準備邁向高峰,所以暫住家中,想等房價下跌時再做打算。期間仍不時四處看房,培養眼光。一等便過了四年,內心實在彷徨,不知道什麼時候才是出手的最佳時機。
某日閒來無事,剛好看到距老家走路十多分鐘左右有一物件,完全沒有裝潢過,可供我們實現生活的想法,不用考慮太多,又是我喜歡的高樓層,採光很棒,且與捷運共構,抗震安全性應該無虞。此外有朋友剛好住在同一社區,之前拜訪時印象很好。
這個物件應是非專任約,所以小綠與小黃都有在賣。
當日下著滂沱大雨,先走到小綠,負責的房仲並不積極,大概是我與老婆大人看起來很年輕(真的只是看起來),認為我們只是看看吧。因此走出小綠店門後便到隔壁的小黃,負責的房仲很熱心,馬上安排帶看,此時天色漸暗,雨也慢慢停了,所以便想走去看看,並順便看看同社區的其他案子,當作散步。其他案子並沒有太令人驚豔,只能說中規中矩。到了我們設定的目標,老婆大人一看便喜歡上了。
視野非常遼闊,遠方可見101大樓,夜景超棒。

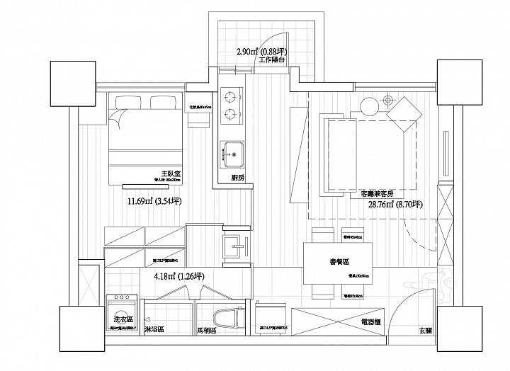
本來是兩房格局,但是原屋主在預售客變時就先打掉一間房,換得了全室開闊的空間。失去了一間房間的運用,不過考量到我們現在只有夫妻兩人,若未來不久有小朋友,他出生後頭幾年,也不太可能讓他自己睡,等小孩大了我也要換房了,那為什麼要空出一個現階段不太會用的空間呢?而且雙方長輩都住在不遠處(走路1X分鐘與開車10分鐘左右),所以家中長輩到家中長住的可能性近乎為零。所以這對我們並不是一個太大的問題。
原屋主完全沒有住過,看得出來沒有什麼使用痕跡(只是暫時堆了一些東西,浴室與廚具的包裝都沒有拆)這也很合老婆大人的意,因為她較有潔癖,不喜歡使用別人用過的,如此一來廚衛器具就不需更換,省下一筆費用。看得出來她對這間依依不捨。所以回家思考了一下,過了兩天又再次請房仲帶看,因為空間開闊,再加上高樓層,整間房子非常明亮,很合我的胃口。房仲帶看第三次後決定下斡旋。來回了幾次,價格仍是略高,但因為我們都很喜歡,也還能負擔,就衝了!!

------
交屋後最煩惱的就是裝潢佈置部分,因為我很龜毛(老婆大人說的),一定都要照自己的意,可是我也知道裝潢部分有很多眉眉角角,除了買了姥姥的書做功課,大量參考喜歡的裝潢佈置案例外,就是找一個專業負責任又合的來的設計師。
裝潢佈置一定要先決定風格,太多人因為喜歡的東西雜,又沒有良好搭配的美感,無法割捨之下,湊在一起就成了極度混搭風,不管怎麼樣就是怪怪的。而很多裝潢節目又弄得超像樣品屋,乍看很漂亮,仔細體會就覺得不實用,感覺也沒有溫度。這不是我想要的。
因為我很喜歡日式無印良品MUJI的感覺,東西非常簡單,但充滿使用者的溫度。而且因風格簡單,只要加上出色的單品就有畫龍點睛的效果。所以日本無印良品的網站以及他們的紙本DM就是最好的參考。原木、水泥、純白與不鏽鋼是風格組成的基本元素,線條越簡單,越不加過多潤飾是最好的。



(取自muji.net)
決定風格後要仔細思考自己的使用習慣,大如格局,小至進家門後放鑰匙喜歡放左手邊還是右手邊,都是要仔細思考的,這樣的裝潢佈置才叫量身打造,錢才花得有意義。我覺得設計師的可貴應該要在這裡提點可能遺漏的部分,一切以屋主自己的需求量身打造,不然就只是收費較貴的統包罷了。
因為家中坪數較小,又只有一大房,所以會希望空間的運用是多元的。
我們對新家空間配置的主要訴求有:
1.因為只有一套衛浴,所以希望浴廁部分拆開,如同日本一般將淋浴、廁所、洗臉盆,讓走道釋放出來,可以擠更多空間,而且空間使用會更有效率(有人洗澡時還是可以上廁所)。
2.可臨時區隔一個彈性空間,以備不時之需。
3.維持全室明亮,希望能讓每個空間都能有自然光。
4.儘量不做天花板,保持高挑空間(也比較省錢)。
5.洗、乾衣機如同國外置於室內,並使用瓦斯乾衣機。
6.以傢俱家飾為主體,絕不做過分裝潢。
新家的陽台空間較小,再來高樓風大,很怕曬衣服時衣物會飛下樓,所以一開始就打定主意完全使用乾衣機,而且我不想要用洗、乾衣機塞滿陽台,犧牲可以眺望風景的小確幸,所以希望與衛浴區整合,動線也最簡單明確。但目前日系、韓系的洗脫烘一體的乾衣能力都太弱了,如洗衣15公斤,烘的時候只能烘7公斤,所以每洗一滿桶衣服要烘兩次,每次再烘2.5~3小時,豈不是一整個假日都在洗衣乾衣了,而且吃電的乾衣機長期使用下來電費所費不貲,評估後決定使用美式洗衣機與瓦斯型乾衣機堆疊,洗整桶衣服加烘乾整桶衣服共只需要一個半小時(標準行程)。而評估了用料與保固後,選擇了Maytag MHW4300DW洗衣機與MGD3100DW乾衣機。Maytag是Whirlpool集團的高階品牌,全機在美國生產製造,保固也比Whirlpool長,美式機的特徵就是粗勇,相信不會讓我們失望。
乾衣機安裝室內的排氣部分一定要仔細規劃,因為用瓦斯乾衣機就像室內使用強排式熱水器,一定要完整排氣管路。我在美國友人家也見過這樣的做法,原廠文件有提供施做準則,以美國企業怕死的程度,我相信絕對可行。但因為國內代理廠商(新禾)只提供基本安裝,安裝一般的排氣軟管(很像抽油煙機用的),軟管在原廠文件裡的允許排氣路徑長只有2公尺,不符需求,所以曾經討論:
1.是否換成吃電的乾衣機(X,效率太差,只能當做冬天晾衣服的輔助,在我的規劃中不實用)
2.排氣至大樓浴廁通風井(X,法規不行,而且出意外會整棟完蛋)
3.把乾衣機移至陽台(X,因為還要放冷氣主機,陽台空間不足,非常不好迴旋。洗衣動線很差)
依據原廠文件,必須使用SUS硬管,且轉折與路徑長度皆有嚴格規定。代理商表示不知該怎麼做,也沒有配合施做的廠商,所以我只能靠自己找。後來幸好找到了一位有豐富經驗的師傅,因為在新店山上潮濕,許多豪宅也有類似需求,所以他處理過很多案子,包括後來訂料(原廠規定的4吋SUS管超難找的)、由室內佈管至陽台都麻煩他。文字很簡單,其實過程諸多血淚啊。後來入住後使用非常爽,就覺得一切辛苦都值得(因為在舊家晾衣服與收衣服是我的工作XD)。

最難搞的乾衣機排氣確定後,浴室規劃就簡單多了,捨棄掉原本的浴缸後,淋浴、廁所用霧玻璃拉門隔開,擠出最多的空間,還能放堆疊的洗、乾衣機。以動線來說洗好澡後,髒衣服直接就丟洗衣機,衣服洗完直接往上丟到乾衣機,烘完直接拿到床上折衣與收齊,省掉了晾衣服與收衣服的步驟,非常方便。而且衛浴區與主臥間決定利用櫃體當隔間牆,省去牆的空間,搾出坪效
針對空間彈性,設計師提出了兩個方案。第一個方案非常精彩,在現今餐廳的位置擠出一個可變形的區塊,利用電影中常見的掀床,需要使用時翻下的床墊設計,加上拉門就可以臨時隔出一間房,是個可以上平面雜誌的設計。第二個方案則是用電視牆區隔廚房與客廳,再用拉門隔出臨時空間。只是這兩個方案的透光程度仍不如整個客廳、餐廳與廚房完整不切割,所以我選用方案二,但是不做電視牆,把整個客廳180度轉向,改用可動拉門將空間隔開,客廳就是臨時客房。(PS:而且不用做電視牆比較省錢)。沙發空間背後則打算選用MUJI橡木無垢材層架作為空間上的分隔。

設計師一開始打算各櫃體使用系統櫃與木作,但既然打定主意走MUJI風,使用MUJI的傢俱是最直接的,而傢俱最大量的部分是櫃體,我認為像一般流行的系統傢俱,總說是可拆裝再安裝,但是櫃體部分總是會遷就現有格局去規劃,屆時搬了新家,舊的櫃體在新家是否合用,總是會打個問號,不然就是又要大費周章修改。再來是這間房子我並不會住一輩子,也許將來有了小孩,他上幼稚園後便會換屋,我希望舊的櫃體能夠無縫接軌沿用,所以我選用MUJI的SUS系列,因為他們的規格是固定下來不會變,之後要維修或擴充都很方便。開放式層架的設計,在房間及衛浴區中間的櫃體可以引進自然光。更重要的是MUJI的「基本寸法」精神,配合他們的整理箱,收納上可以保持開放式櫃體但又不失整齊。


(取自muji.net)
其他的傢俱、家電尺寸在空間規劃上也很重要。當年結婚時剛好詩肯的元素系列出清,我很喜歡它們未上漆的質感,所以就把它們的床架與實木餐桌帶回家,簡潔的設計,觸摸原木毛細孔,感覺每一絲紋理。當然它們也符合MUJI的精神,所以床與餐桌搬到新家沿用,尺寸很容易確定。其他電器則視情況新購或沿用。
當櫃子數量及傢俱、家電的尺寸都決定後,才開始與設計師討論設計的細節尺寸。
另外為了更有感覺,自己使用SketchUP將3D模型建構出來,討論空間上會更精確。而且之後在家飾擺設上可以預擺,直接看比例與位置是否協調,省去不少冤枉路。


決定了大致的格局規劃,就開始玩MUJI的SUS假組合遊戲。幸好日本MUJI網站提供模擬組合,組完後還可以統計需要多少材料。就組合好的圖面和設計師討論尺寸位置,會非常精準。


全家規劃下來的MUJI系列算是很大筆的開銷,超過六位數(後來根據物流表示我是當月冠軍),所以我很早就申請了MUJI聯名卡,可以累積MUJI點數折抵消費,再搭配百貨公司週年慶的滿5000送500,以及MUJI自己週年慶的滿千送百,省下不少錢(信義區統一百貨就這麼剛好都湊在一起了,有興趣的可以注意。)
另外用作臨時隔間的拉門,最後因為爆預算,就先省著吧,以後有機會再補足了。

(取自muji.net)
本來想做這樣的.......殘念。
------
一切設計準備妥當,開工!!

室內不大,所以要打的部分大概兩天就打完清運完畢(主要是動浴室及部分拋光石英磚)。

泥作部分主要是安裝洗臉盆區,墊高淋浴區、廁所及洗乾衣區,並施做防水。



在還未上防水前,樓下鄰居表示有滲水情況,雖是正常狀況(本來防水施做前,水泥本身的水一定會往下滲),但仍對鄰居感到不好意思。幸好防水做好後,試水72小時,並沒有滲水的情況。且入住至今也沒有聽到鄰居反應,應該是防水成功了。

因為高樓風大,怕之後冬天會無法開窗,又想維持室內適當的二氧化碳濃度,所以裝設全熱交換機,希望能給家中清新的空氣。

水電部分則依照我們的需求配置。因為我很不喜歡使用延長線,既然要弄就要弄好。所以一開始規劃時,就要詳細計算會使用哪些電器,它們的電壓、耗電量多少,使用位置會在哪裡,若是高耗電的產品(如烤箱、浴室暖風機等)就要設計專用迴路,全部都要計算好。


地板算是室內非常大面積的項目,會決定整個室內氛圍,所以一開始建商鋪設的白帥帥拋光石英磚馬上被打槍。
MUJI的元素應該是水泥粉光或木頭地板。因此與設計師討論後,地坪同時採用這兩種元素,不同材料也可作為空間上的區隔。
但是水泥部分因為很難操控,施做良好的水泥粉光看起來超有質感,可是日後多少會起沙與裂痕,老婆大人自覺無法接受。所以我們改以偷雞的方式,選擇了花色燒製非常像的磚,現在磚面的仿真技術越來越好(很流行的木紋磚即為一例),小小塊的樣本還感覺不出來,但大面積就很有感了,整體鋪設效果很棒。


而木頭地板則是天人交戰,很想要鋪設實木,但是現在木頭地板的價格不比小時候,貴爆了。所以還是選擇CP值比較高的超耐磨地板,好在現在仿真技術也越來越好了,雖是印刷面,還是能唬人,加上深刻紋,腳踩雖感覺與實木不同,可是足以騙過眼睛了。


泥作完成就該木作進場,主要是包部分樑、衛浴區的天花板及三個木拉門,主要空間不打算做天花板,空間開闊又省錢,管線外露也很有味道。品項少施工就快,大約一個禮拜就結束了。


再來便是補土、打磨的粉塵地獄。

牆壁顏色也是決定氛圍的重要元素,MUJI的精神就是白,而且不是粉白,不是米白,不是XX白,一定要選特白。粉刷完後就很有感覺了。

因為不做天花板,所以要弱化管線在視覺中的角色,讓它不明顯。可以將管線噴上與天花板同色的漆,視覺上會趨於一致,又保有一些工業元素的美感,有的美式餐廳會將天花板噴全黑或鐵灰,而我設定是MUJI的基調,所以一起噴白。當然管線要走好,儘量拉成直角。

安裝洗衣機、乾衣機與連結排氣管系統,這部分需要多方協調共同進場。



安裝定位完畢,他們真的很重,要四個大人才能推定位,好在人手夠。

客餐廳主要照明選用軌道LED燈,房間部分則用筒燈,燈色皆選用3000K,讓空間感延續。 本來想找4000K的,會更接近我想要的感覺,但考量到4000K的LED燈不好找,主流仍為3000K與6000K,怕之後更換會有困難,所以還是選擇3000K的暖黃燈。另外客廳會再輔以MUJI的落地燈,增加沙發區的照明以及裝點氛圍。

剛完成時可說家徒四壁,因為畫龍點睛的傢俱還沒有進來。我認為傢俱才是家庭佈置的主體,一項好的傢俱比在天花板雕花更能帶出整體氛圍。

與廠商約好,包括搬家公司及傢俱在一天之內進場。
MUJI大軍進場(還有很多材料堆在門外)。


一共組裝了沙發後方的無垢材櫃、客廳與餐廳各一面SUS層架與主臥及衛浴區隔間用的4座SUS層架,工作人員從下午三點一直組裝調整到將近晚上十二點,真是辛苦他們。

------搞定。
入住滿三個月,很高興設計都符合設想。我想實際生活痕跡的照片,應該比剛裝潢完的沙龍照更有溫度。歡迎光臨。
一進家門先面對的是餐廳與客廳的開闊空間,自然光下很和諧,讓人能沈靜放鬆。

餐椅部分選用Carl Hansen & Søn CH24與CH88橡木皂裝,保留最質樸的觸感。本來想用四張CH24,但是老婆大人覺得有一點變化也不錯,所以將其中兩張換成CH88經典配色。 餐桌則是詩肯的元素(絕版品),完全未上漆的質感與餐椅的皂裝相輝映,能觸摸到原木的溫潤,是上漆傢俱比不上的。只是將來保養要多費點心了。
CH24

CH88

餐廳主燈部分,因為位置之故,一進大門便會映入眼簾,所以也不能馬虎。本來想支持國貨,選擇Seeddesign的MUMU,可是它的上市時間一延再延,趕不及我們的裝修時間,所以牙一咬,直接選Louis Poulsen PH5經典款,實品比網站上的照片更精緻呢。

客廳因為不大,選用一字型3人座的沙發足矣。本來想說直接買MUJI的沙發就好了,但是老婆大人對坐感不滿意,只好另覓目標。但大多的一字型沙發都太龐大了,放進空間來比例太大,不適合我們家。好在尋尋覓覓,找到日本的Karimoku品牌,日本的傢俱廠,自然設計也是滿滿日本風,它最有名的當屬 K-Chair,我本來很有興趣,只是老婆大人不喜歡他的復古風。但是同一廠牌的三人沙發Haru HS-1算是最平衡的選擇,不論尺寸與設計都和MUJI風格非常搭,我們再選用偏米色的布面,完美融入空間中。

電視牆本來很想要仿清水模風格,但是清水模在大型空間方能顯出它的大氣,在比較小的空間反而會讓空間拘促,所以還是回歸MUJI風格,以白色為基底,靠木頭層板點綴,讓視覺平衡。最右側大門口安裝了全身鏡,可在出門前最後檢視。Dyson V6 Fluffy 則是去日本賞楓的戰利品。MUJI的SUS層架佈滿牆面,右方作為鞋櫃,還好我們倆人都不算蜈蚣,也說好丟一雙才能再買一雙,算夠用了。下方可掛外出用外套。中間則是與PP盒搭配儲物,以及較常用的包包。最左方電視下為電器櫃,因為沒有玩音響,算夠用了。辛苦的機器人也有它的家。

客廳與廚房之間,靠著MUJI無垢材橡木層架,做空間的區隔。設定上可以做為書架,也可以和PP盒結合使用,成為廚房的儲物層架。

廚具因為是全新的,所以我們保護下來沿用,只是加裝一些SUS掛鉤與層架,方便使用。

餐桌後方的電器櫃,同樣使用MUJI的SUS系列,與我們挑選的烤箱尺寸剛好吻合。電子鍋上方改用不鏽鋼層板,就不用擔心水氣問題了。連冰箱也可以整合在一起,看起來非常的有整體性。冰箱是選用SHARP SJ-XW44BT不鏽鋼色左右開冰箱,與SUS層架質感搭配,拿東西也很方便。另外放乾燥箱的SUS層架下方安裝滾輪,可遮住後方的弱電箱,需要時推開即可。另外此處剛好是大門左側,可放置鑰匙、手錶等小物。



主臥藉由木製拉門隔開

我們覺得房間就是要好好休息,所以東西非常簡單。床架是已經絕版的詩肯元素系列,設計簡潔,同樣是未上漆的原木質感,簡單清爽。



衣櫃共規劃四座MUJI的SUS層架(背面浴廁區還有兩座)再配合MUJI的PP盒,收納量其實非常夠。依照季節分裝入收納盒,只將當季的衣服拿出來,就算是開架式衣架,仍然可以很清爽。

衣櫃旁則是老婆大人的化妝桌,配上大面鏡。桌子比較小,就由一張好椅CH53彌補吧,同樣是橡木皂裝與原色紙纖,與餐椅相呼應。

CH53

接著是重點改裝的衛浴空間

進門右手邊是洗臉盆,可通向主臥。


廁所與淋浴間用強化玻璃隔開,左方是廁所,右方是淋浴間。安裝完之後才知道「白玻」不是真的白,會泛綠,我理想狀態應該要選「特白」,也就是不會有綠色出現,小小的遺憾。

TOTO免治馬桶座是建商附贈。牆面安裝MUJI的層版,清爽乾淨。

淋浴區因為我的堅持,一定要有花灑(喜歡淋雨的感覺),TOTO的花灑大多配合它的溫控龍頭,但是因為已經選用恆溫熱水器,據說再使用溫控龍頭水溫會偏低,幸好仍有一組非控溫龍頭的選擇。

洗衣機與乾衣機堆疊。總算實現不用晾衣服收衣服~~空閒時間變多了~~

我覺得家裡的氛圍在自然光下最棒,但是打開開關,暖黃光下也有不同的味道。



在這樣的空間中,有一些綠色點綴,對於畫面會更和諧。花器選擇白色霧面,簡單的造型,完全符合我的喜好。左方的花器則是與老婆大人遊日本時,在宮崎駿專賣店購買,很有童趣。


牆上釘著MUJI的層板,擺放著生活上的點滴,中山熊是老婆大人母校的紀念。 LEGO Volkswagen Camper Van from 1962,則是好友送的喬遷禮,大家花了一整個下午組合,成為我們共同的回憶。




最適合放鬆居心的角落,工作累了就把窗簾拉開往外看看,開闊的景色心情也跟著開闊。

------
成家是件辛苦的事情,但是與愛的人一起規劃想像,一步一步建立起自己的家,這才是最可貴的。至於完全由自己心意打造的成果,算是錦上添花吧。
最後送上清澈的夏日午後,這片景色,是最美的。自己的家,是最美的。

(本文獲得作者同意轉貼)
原文:http://www.mobile01.com/topicdetail.php?f=360&t=4861486


